Trescientos metros cuadrados es lo que mide el espacio que el presidente de México ocupará del Palacio Nacional ahora que se mudó a este recinto histórico, sede del Poder Ejecutivo y que comenzó a ser construido en 1522. El plano fue dado a conocer por López Obrador el martes 30 de julio, momento en el que ya tenía una semana habitando el espacio que mandó a construir Felipe Calderón , que Enrique Peña Nieto conservó y que además fue él quien le mostró personalmente el inmueble en el periodo de transición.
Así es el departamento donde vive López Obrador en Palacio Nacional


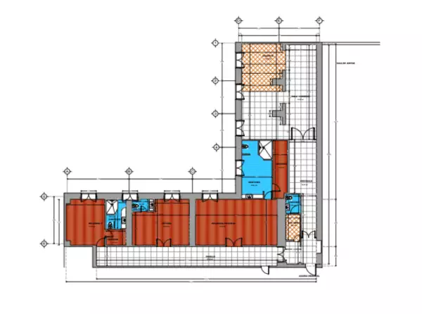
La imagen que se dio a conocer muestra en color rojo las dos habitaciones y el estudio, mientras que la cocina, la sala y el comedor están en color azul. Además, los datos que se dieron a conocer en la conferencia matutina sobre las medidas son los siguientes:
Recámara principal (40.5 m2) con sanitario (19.5 m2) y vestidor (8.9 m2).
Recámara secundaria (19.2 m2) con sanitario (6m2) y vestidor (3.3 m2).
Estudio (25.3 m2) con sanitario (2.5 m2).
Cuarto de servicio (4 m2) con sanitario (2.0 m2).
Sala comedor (53 m2)
Cocineta (21 m2).
El departamento está ubicado junto a lo que eran las oficinas del Estado Mayor Presidencial, lugar en donde Andrés Manuel anunció que comenzaría a trabajar y atender los asuntos presidenciales, para dejar el despacho del presidente que ocupaba, así como el comedor principal de Palacio Nacional en donde hacía reuniones, con el fin de cuidar dichos espacios históricos.
Según fuentes de la Presidencia de la República, la familia López Gutiérrez, no estará de forma permanente en Palacio, ya que irán y vendrán de su casa en la alcaldía de Tlalpan en la calle Cuitláhuac #90 colonia Toriello Guerra, como le han estado haciendo en los últimos días.